Bornage et Reconnaissance des limites d’un terrain
Seuls les Géomètres-Experts inscrits à l’ordre peuvent effectuer les travaux prévus au 1° de l’article 1er de la loi n°46-942 du 7 mai 1946 instituant l’Ordre des Géomètres-Experts. Le 1° de l’article 1er de ladite loi indique ainsi que « le Géomètre-Expert (…) réalise les études et les travaux topographiques qui fixent les limites des biens fonciers et, à ce titre, lève et dresse (…) les plans et documents topographiques concernant la définition des droits attachés à la propriété foncière, tels que (…) les plans de bornage ou de délimitation de la propriété foncière ; ».
Ainsi, que vous souhaitiez connaitre les limites de votre propriété afin de clore celle-ci, vérifier la surface réelle de votre terrain ou matérialiser l’empiétement du dernier projet de votre voisin sur votre propriété, ABSCISSE Géo-Conseil saura mener pour vous une opération de bornage amiable contradictoire ou de reconnaissance de limite, en votre présence et après convocation des riverains concernés.
Afin de formaliser l’accord des parties, l’opération de bornage amiable contradictoire ou de reconnaissance de limites sera finalisée par la rédaction et la ratification postérieure d’un Procès-Verbal de Bornage qui figera définitivement la position des limites définies.
En cas de carence d’accord d’une des parties conviées à l’opération, le Géomètre-Expert en charge de votre dossier procédera à la rédaction d’un Procès-Verbal de carence qui vous permettra, le cas échéant, via le tribunal d’Instance compétent, de faire procéder au bornage judiciaire de votre limite de propriété.
NOTA : Toute prestation est précédée de la rédaction d’une estimation d’honoraires après discussion avec un des Géomètres-Experts d’ABSCISSE Géo-Conseil.
Division de propriété
Vous souhaitez céder une partie de votre propriété à vos enfants, échanger une partie de celle-ci avec votre voisin, vous séparer d’une partie de votre jardin devenu trop contraignant à entretenir ou créer des terrains à bâtir sur un terrain constructible en votre possession, ABSCISSE Géo-Conseil étudie les conditions de faisabilité de votre projet, vous propose diverses alternatives, vous explique les différentes étapes de réalisation de la prestation et procède, sur le terrain, au bornage des limites nouvellement définies tout en listant les servitudes existantes ou créées par le projet de division.
Toute opération de division de propriété donne lieu au dessin d’un plan de division ou d’un plan de bornage et à la rédaction d’un document de modification du parcellaire cadastral qui permettra la mise à jour du plan cadastral.
Conformément aux directives de l’Ordre des Géomètres-Experts et par soucis de recherche de la sécurité du client, la plupart des opérations de division de propriété donne lieu à la réalisation d’une procédure de bornage amiable contradictoire des extrémités de la limite nouvellement définie.
NOTA : Toute prestation est précédée de la rédaction d’une estimation d’honoraires après discussion avec un des Géomètres-Experts d’ABSCISSE Géo-Conseil.
Mise en copropriété ou modification de copropriété – Division en volumes
Votre propriété présente une superposition avec celle de votre voisin (sa chambre est au-dessus de votre cuisine, ou sa cave est en dessous de votre salle d’eau, ou son salon est au-dessus du porche d’accès à votre jardin, etc.), vous souhaitez diviser un bâtiment vous appartenant, vous envisagez la construction d’une résidence avec vente de biens en état futur d’achèvement (VEFA), ABSCISSE Géo-Conseil étudie votre projet, vous apporte des éléments de réflexion quant au futur fonctionnement du bâtiment une fois divisé, et adapte sa proposition de prestation à vos attentes.
Toute opération de mise en copropriété donne lieu à la rédaction d’un projet d’état descriptif de division (avec plans de localisation des lots), à la rédaction d’un projet de réglement d’administration et de gestion de la copropriété et à la préparation de certificats de mesurage de la surface privative des lots principaux (surface dite « Carrez »).
Toute opération de division en volumes donne lieu à la rédaction d’un projet d’état descriptif de division, et potentiellement à celle de statuts d’ASL (Association Syndicale Libre) et d’un cahier des charges de la construction.
Vous êtes copropriétaire ou syndic de copropriété et souhaitez faire apporter une modification dans une copropriété existante (aliénation de parties communes, changement de destination de lots, division de lots, fusion de parties privatives, création de nouvelles clés de répartitions de charges, etc.), ABSCISSE Géo-Conseil étudie la situation juridique actuelle de votre bien, vous conseille sur les modifications à apporter et vous propose la rédaction d’un projet de modificatif à l’état descriptif de division de votre copropriété, adapté à vos attentes.
NOTA : Toute prestation est précédée de la rédaction d’une estimation d’honoraires après discussion avec un des Géomètres-Experts d’ABSCISSE Géo-Conseil
Vous souhaitez valoriser votre propriété en y créant un ou plusieurs terrains à bâtir, nous vous accompagnons en vous proposant un découpage de votre propriété adapté à vos souhaits et au profil des acquéreurs envisageables sur votre territoire, en obtenant la confirmation que votre projet est réalisable (Demande de Certificat d’Urbanisme Opérationnel), en estimant le cout des travaux à financer, en menant les opérations de bornage amiable contradictoire de votre propriété, en divisant celle-ci, en préparant un dossier de lotissement adapté au projet (Déclaration Préalable ou Demande de Permis d’aménager), en vous aidant dans le choix des entreprises consultées dans le cadre de travaux de viabilisation et en effectuant, pour vous, le suivi desdits travaux.
ABSCISSE Géo-Conseil et ABSCISSE VRD-Conseil vous proposent donc un accompagnement complet qui, à partir d’un terrain nu vous permettra d’obtenir un ou plusieurs terrains à bâtir, prêts à être vendus. Vous pouvez ne vous occuper de rien, nous pouvons nous occuper de tout !
NOTA : Toute prestation est précédée de la rédaction d’une estimation d’honoraires après discussion avec un des Géomètres-Experts d’ABSCISSE Géo-Conseil
Vous êtes un particulier ou un professionnel qui avez besoin d’un plan topographique de votre propriété faisant figurer l’intégralité des éléments existants (végétation, réseaux, etc.) ainsi que les cotes altimétriques de celle-ci, vous êtes une collectivité qui souhaitez entreprendre un aménagement sur le domaine public, vous êtes un professionnel du bâtiment qui devez mener un projet de construction ou d’aménagement, ABSCISSE Géo-Conseil se charge de la réalisation de tous levés topographiques pour vous, compris la détection des réseaux sous-terrains. Nous adaptons nos prestations à vos demandes (échelle de relevé, niveau de précision, etc.).
Vous souhaitez implanter sur site les points caractéristiques d’un projet, en vous assurant de respecter l’ensemble des contraintes fixées par les divers intervenants, ainsi que les limites de propriété tout en limitant le risque de contentieux, ABSCISSE Géo-Conseil s’occupe de mener les vérifications de conformité foncière du projet et de bonne corrélation, entre eux, des plans fournis.
Vous êtes une entreprise du BTP en charge du positionnement de nouveaux réseaux sous-terrain et vous souhaitez le géoréférencement de ceux-ci ainsi que la création de fichiers spécifiques géoréférencés (Lots EDIGEO, etc.), ABSCISSE Géo-Conseil se charge de la réalisation de relevés en tranchées ouvertes et de la création de fichiers géoréférencés.
Vous êtes en charge de l’exploitation d’une carrière et souhaitez un relevé régulier de vos remblais et déblais par relevé GPS ou par drône, ABSCISSE Géo-Conseil vous propose une prestation adaptée à vos attentes techniques et financières.
NOTA : Toute prestation topographique est précédée de la rédaction d’une estimation d’honoraires après discussion avec un des Géomètres-Experts ou un des techniciens qualifiés d’ABSCISSE Géo-Conseil.
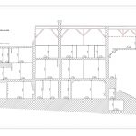
Vous êtes un particulier, un professionnel ou le représentant d’une collectivité. Vous souhaitez réhabiliter un bâtiment existant ou étudier un nouveau projet en lien avec un bâtiment existant, vous avez besoin de plans détaillés de celui-ci (plans d’intérieur, coupes longitudinales ou transversales, plans de façades) ou avez la volonté de vous inscrire dans une démarche BIM (Bâtiment et Informations Modélisés), ABSCISSE Géo-Conseil vous accompagne dans la numérisation de l’existant grâce à ses méthodes éprouvées de relevé tridimensionnel à l’aide d’un laser-scanner 3D.
Vous aviez l’habitude de n’avoir que des plans, des coupes et des plans de façades, nous vous fournissons désormais également des ortho-photos de façades et une visite virtuelle du bâtiment scanné afin de pouvoir, depuis votre ordinateur vous déplacer dans celui-ci et coter les détails visibles qui n’auraient pas été portés sur des plans au 1/50ème ou au 1/100ème.
Vous aviez la désagréable habitude de vous passer de coupes supplémentaires car financièrement non envisageables ? Le nuage de point présent sur les disques durs d’ABSCISSE Géo-Conseil après numérisation est si complet qu’il peut permettre, dans 99% des cas et sans nouveau déplacement sur site, le dessin de coupes non prévues initialement pour un cout maitrisé. Alors pourquoi s’en priver ?
NOTA : Toute prestation topographique est précédée de la rédaction d’une estimation d’honoraires après discussion avec un des Géomètres-Experts ou un des techniciens qualifiés d’ABSCISSE Géo-Conseil.
ABSCISSE Géo-Conseil mène régulièrement des opérations d’Aménagement Foncier Agricole et Forestier sur le Département de la Vienne et les Départements riverains.
Souvent en lien avec des projets linéaires (contournement de communes, lignes ferroviaires type LGV, Autoroutes, etc.) mais également parfois par volonté de réorganisation du foncier à l’échelle communale ou intercommunale, ces prestations ont pour objet la redisposition des terres apportées par chaque propriétaire afin d’en faciliter leur desserte et leur exploitation.
Aménagements Fonciers Agricoles et Forestiers en cours ou terminés ces dernières années :